A Bethlen Residences egy exkluzív, mindössze 4 lakásból álló prémium társasház, amely ötvözi a modern építészeti megoldásokat a kényelmes városi élettel. A projekt minden részlete a minőséget és a fenntarthatóságot szolgálja, hogy otthona időtálló és kényelmes legyen.
Tervezés és elrendezés
Földszint: Zárt teremgarázs, elektromos autó töltési lehetőséggel.
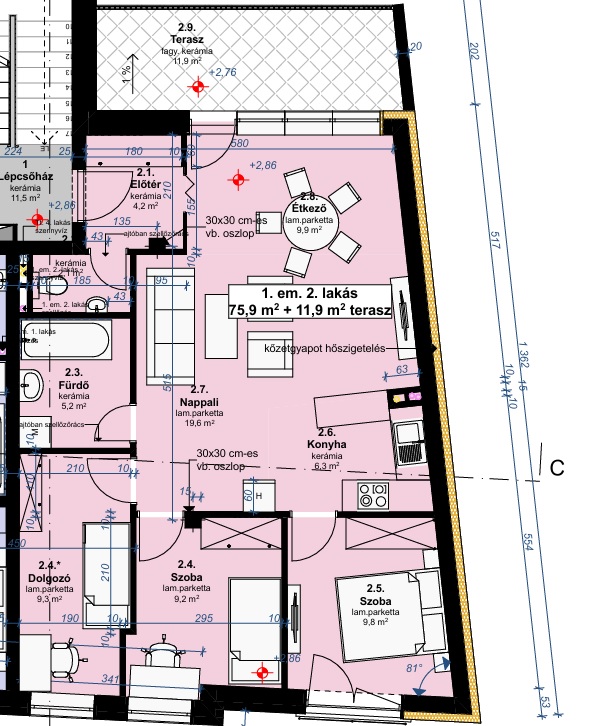
Első emelet: Két tágas, jól kialakított lakás.
Második emelet: Két további, elegáns lakás nagy belmagassággal és világos terek kialakításával.
Mindegyik lakás saját, használható méretű erkélyéről a nyugodt, csendes belső udvarra nyílik kilátás, ahol a lakók zavartalanul élvezhetik a parkosított kert szépségeit.
Modern technológia és fenntarthatóság
A társasház energiahatékonyságáról a talajszondás hőszivattyús rendszer gondoskodik, amely egyszerre biztosítja a fűtést és hűtést. Ez a megoldás nemcsak környezetbarát, hanem hosszú távon jelentős energiamegtakarítást is garantál.
Parkolás és kényelem
A lakók autói számára zárt teremgarázs áll rendelkezésre, ahol minden parkolót igény szerint elektromos töltőállomással is fel lehetszerelni, így a fenntartható közlekedést is támogatjuk. Teremgarázs beálló ára bruttó 7,5 mFt.
Megbízható beruházó és referenciák
A beruházó már bizonyította szakértelmét és megbízhatóságát a közvetlen szomszédban felépített, 27 lakásos Bethlenház társasház sikeres kivitelezésével. Ez a referencia garantálja, hogy a projekt a legmagasabb minőségi elvárásoknak megfelelően és a tervezett időben készül el.
Külső megjelenés és beltéri design
A beruházó külön erre a projektre alkalmazott szakértő csapatot a belső terek legoptimálisabb és esztétikus kialakítására. Ez magában foglalja például a teljes konyhát, bútorral és gépekkel (vételár nem tartalmazza) és egyéb más hasznos kiegészítőt is. A lakás teljesen készen, lámpákkal várja új tulajdonosát akinek már csak be kell költöznie és élvezni a szakemberek alapos munkájának gyümölcsét.
Az építkezés előrehaladása
A kivitelezés már megkezdődött, és a tervezett átadás 2025 decemberében várható.
A Boldog utcai rezidencia egy elegáns, mindössze 2 lakásból álló társasház, amely ötvözi a ...
A Boldog utcai rezidencia egy elegáns, mindössze 2 lakásból álló társasház, amely ötvözi a modern építészeti megoldásokat a csendes, nyugodt környezetben való k ...
A Bethlen Residences egy exkluzív, 4 lakásból álló prémium társasház, amely ötvözi a moder ...
A Bethlen Residences egy exkluzív, 4 lakásból álló prémium társasház, amely ötvözi a modern építészeti megoldásokat a kényelmes városi élettel. A projekt minden ...
A Bethlen Residences egy exkluzív, mindössze 4 lakásból álló prémium társasház, amely ötvö ...
A Bethlen Residences egy exkluzív, mindössze 4 lakásból álló prémium társasház, amely ötvözi a modern építészeti megoldásokat a kényelmes városi élettel. A proj ...